REQUEST A TOUR If you would like to see this home without being there in person, select the "Virtual Tour" option and your advisor will contact you to discuss available opportunities.
In-PersonVirtual Tour

Divine Fog Realty San Diego
sandiegoadmin@divinefogrealty.com$ 2,648,800
Est. payment | /mo
$ 2,648,800
Est. payment | /mo
Key Details
Property Type Vacant Land
Listing Status Active
Purchase Type For Sale
Subdivision Roundhill North
MLS Listing ID 41117412
HOA Y/N Yes
Property Description
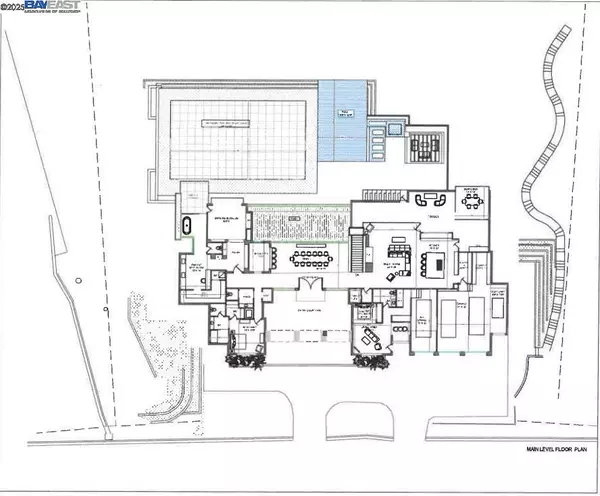
RARE OPPORTUNITY LOT WITH PANORAMIC, SPECTACULAR VIEWS OF THE VALLEY AND THE GOLF COURSE IN ALAMO, ROUND HILL COUNTRY CLUB NORTH. A TUSCAN HOUSE DESIGN IS APPROVED ON THE LAST AND BEST VIEW LOT IN A BEAUTIFUL NEIGHBORHOOD. THIS 5,405+/- SQUARE FOOT HOUSE HAS THE PERFECT FLOOR PLAN, PLUS A 535+/- SQUARE FOOT ADU WITH SEPARATE ACCESS AND AN ATTACHED GARAGE. THIS NEIGHBORHOOD HAS GOLF CART LIVING, WITH THE BEST SUBURBAN RESTAURANTS, EXCELLENT SCHOOLS, AND A REGIONAL TRAIL HEAD AT THE END OF THE STREET FOR SCENIC WALKING. CHECK ASSOCIATED DOCUMENTS.
Location
State CA
County Contra Costa
Zoning R
Interior
Fireplace No
Exterior
View Y/N Yes
View Golf Course, Hills, Mountain(s), Panoramic
Building
Sewer Public Sewer
Water Public
Others
HOA Name CALL LISTING AGENT
Tax ID 1936900396
Acceptable Financing Cash, Conventional, 1031 Exchange
Listing Terms Cash, Conventional, 1031 Exchange

Listed by Soosan Rod Intero Real Estate Services

"My job is to find and attract mastery-based agents to the office, protect the culture, and make sure everyone is happy! "






